Horiba Scientific

NVDC Architects were approached by Horiba Scientific Scotland to design their new office layout and interior and to oversee the project from start to completion.

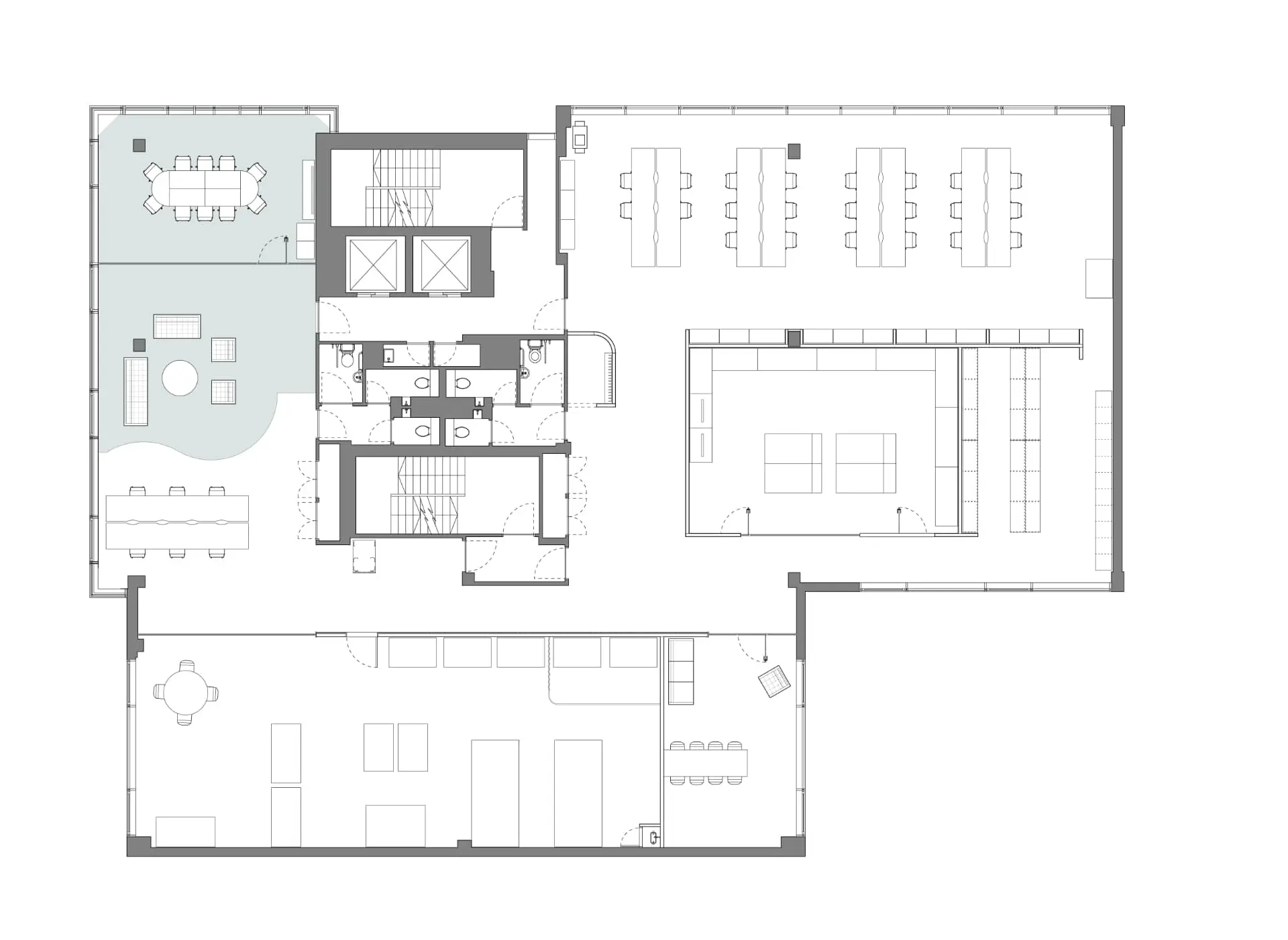
Working closely with the client to a tight budget and timescale, our design involved key strategic design moves and a limited palette of finishes to retain the sense of space after creating the necessary separate zones.

Location
Finnieston Street, Glasgow
Client
Horiba Scientific Scotland
Project Type
Office Space
Project Status
Completed in 2012
Size
450m2

The project Scope of Work comprised a full internal fit-out and alterations to an existing office unit on the 4th floor of a new-built office building on Finnieston Street.  Our design has resulted in the creation of a contemporary open-plan office with glass partitions, timber-clad partitions, exposed raised flooring, and a central ‘pod’ to house the technical laboratory.

NVDC Architects

Browse our website offline by installing our web app for free!

This website uses cookies to ensure you get the best experience on our website. Privacy Policy