Bupa Belgravia

Bupa Belgravia is a new 5-surgery Referral Dental practice for the Bupa Dental Care brand, Bryer Wallace.

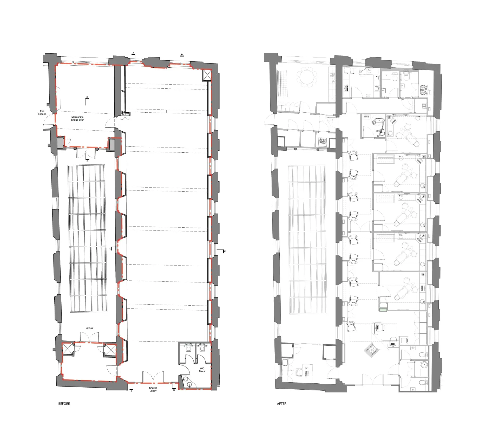
The project involved the conversion of a vacant unit within an ‘A’ Listed property previously used as a gym. The biggest challenge with this unit was accommodating the ventilation system and all other services within the low floor-to-ceiling height of the unit at 2.4m whilst negotiating the various downstand beams. Another key challenge with the unit was the irregular geometry of the space with no walls being parallel to others.

Location
Belgravia, London
Client
Bupa Dental care
Project Type
Dental Practice
Project Status
Completed in 2021
Contract Value
£400,000
Size
270m2

Our design solution was to create a complex series of diaphragm walls along the perimeter of the unit housing low-level and high-level ventilation ductwork and develop a series of coffered ceilings allowing us to incorporate high-level ductwork running across the various spaces. The coffered ceiling design was adopted as an appropriate architectural device to create an architectural language in keeping with the existing building’s heritage while creating visual rhythm and articulation as well as a better definition of the various spaces within the overall practice layout.

NVDC Architects

Browse our website offline by installing our web app for free!

This website uses cookies to ensure you get the best experience on our website. Privacy Policy