Alyth Dental Care

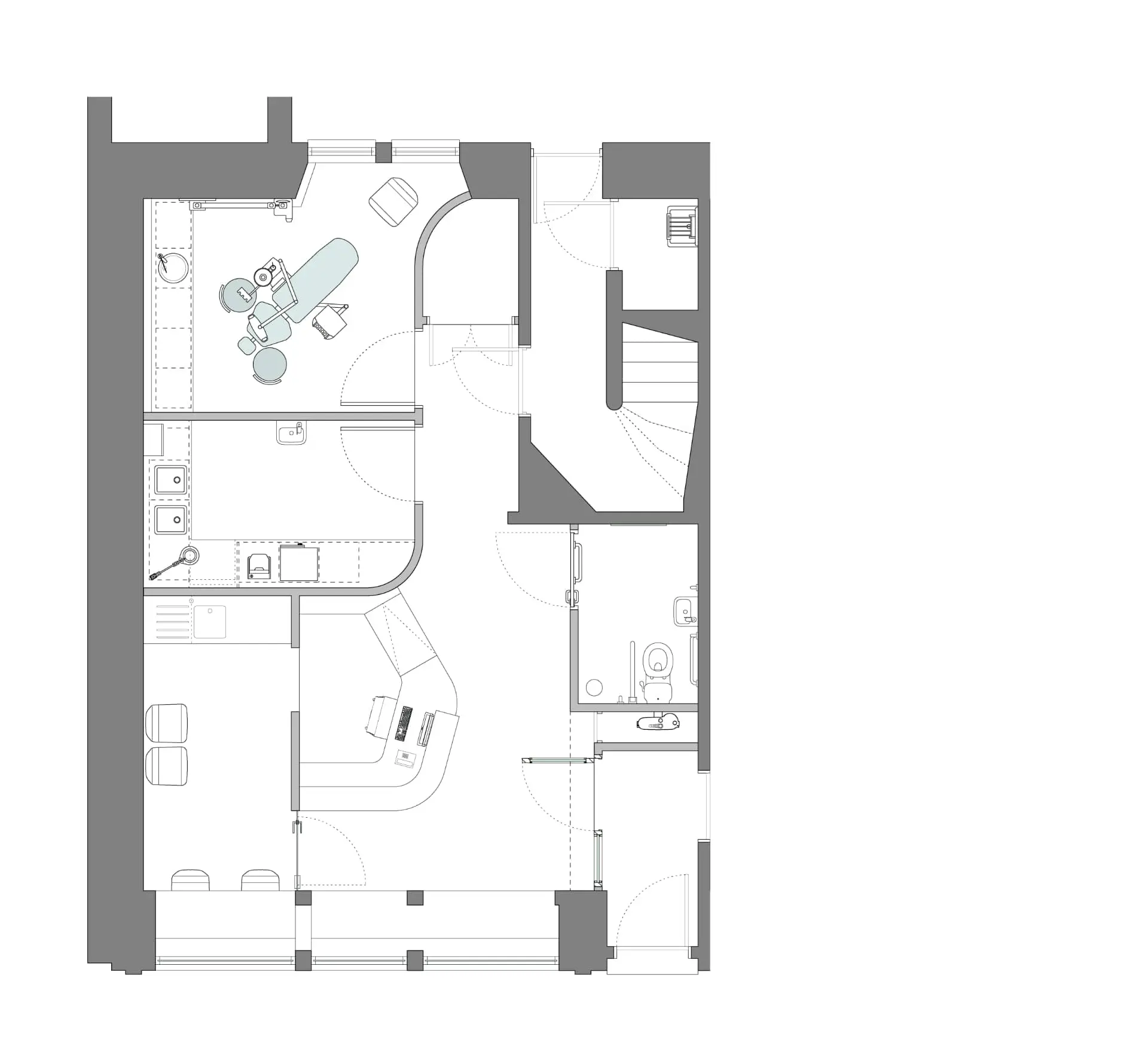
NVDC Architects were commissioned to design and provide full architectural services for the creation of a fully compliant one-surgery dental practice within the existing commercial unit property in the tranquil village of Alyth, Perth and Kinross.

Location
Commercial Street, Alyth
Client
Dr Paul Roberts
Project Type
Dental Practice
Project Status
Completed in 2014
Contract Value
£80,000
Size
60m2

In spite of the plot's relatively small footprint, and working to a tight budget, our aim was to achieve great drama and impact through the use of discrete lighting features in the reception space ceiling and fluid forms of the reception desk and partitions defining the circulation spaces.

Working closely with the contractor cabinetmakers, the reception desk has been designed as a piece of freestanding crafted timber sculpture at the centre of the light-filled entrance space. The fluid forms, care, and attention to detail aim to convey and communicate the client’s values and ethos in providing high-quality dental care for his patients.

NVDC Architects

Browse our website offline by installing our web app for free!

This website uses cookies to ensure you get the best experience on our website. Privacy Policy